磁翻板液位计结构图、安装图、安装步骤、使用?
发表时间:2022-07-01 15:46 浏览次数:626
磁性翻板液位计结构图、安装图、安装步骤、使用及维护注意事项全套介绍(图)
液位计是根据浮力和磁耦合原理研制的。当被测容器中的液位上升和下降时,液位计体管中的磁浮子也随之上升和上升,浮子中的永磁体通过磁耦合转移到磁翻转柱指示器上,驱动红、白翻转柱翻转180°,液面上升时由白色变为红色,液面下降时由红色变为白色,并在指示剂的红白交界处将容器内液位的实际高度转换到容器内的实际高度。因此,可以实现液位的明确指示。
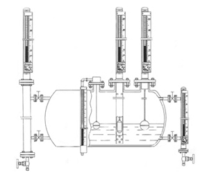
安装图

BR-UHZ侧装磁翻转板液位计安装步骤
且侧一连接的磁性有翻转容器导流中连接位计两式与管分别法兰,管个磁性法兰"导流板根在液装浮子主管道。
BR-UHZ顶部安装磁性翻板液位计安装步骤
将顶部安装的磁翻转板液位计分为两部分,上部在容器顶部,下部安装在容器内,法兰与容器法兰连接。液体管中的部分浮子通过连杆和上导管中的磁头连接。当液体发生变化时,浮子驱动磁性钢在导管中上下移动,驱动红色和白色指示球的显示部分翻转,并读取面板上的液面高度。
BR-UHZ磁性翻板液位计的使用与维护注意事项
1.磁浮子液位计本体周围不允许有磁性材料靠近。严禁用铁丝固定,否则会影响磁翻板液位计的正常工作
2。如果用户自行采用伴热管,则必须选用铜管等非磁性材料。伴热温度根据介质条件
3。确定磁翻板液位计必须垂直安装,磁翻板液位计与容器主管之间应安装球阀,以便于维护和清洗
4。介质中不得有固体杂质或磁性物质,以免堵塞浮子
5。使用前,零位以下的小球应设为红色,其他小球应设为白色
6。打开底部法兰并安装磁性浮子(注意:重型端与磁性端向上,不能倒置)。调试时,先打开上阀,再慢慢打开下阀,使介质顺利进入主管内(运行时避免介质快速冲击浮子,造成浮子系列波动,影响显示精度),观察磁性红白球翻转是否正常,然后关闭下阀,打开排污阀,让主管内液位下降,运行三次后即可投入运行(腐蚀性及其他特殊液体除外)
8。主管应根据介质情况不定期清洗,去除杂质
9。对于一定长度的液位计(普通型>3M,防腐型>2m),应增加中间加强法兰或固定支架吊耳,以增加强度,克服自身重量
10。磁翻板液位计的安装位置应避开或远离物料介质的进出口,以免物料流体的局部面积迅速变化,影响液位测量的精度
11。配远传配套仪表时,应做到:a)使远传配套仪表靠近液位计主管,并用不锈钢箍固定(禁止用铁);b) 远传仪表的上传感面应朝向并靠近主管;c) 远传仪表的零位应与液位计的零位在同一水平面上;d) 远传配套仪表与显示仪表或工控计算机之间的配线应分别穿保护管或用屏蔽双芯电缆敷设;e) 接线盒接线孔敷设后,要求密封良好,以免雨水、湿气等侵入,造成远传配套仪表不能正常工作。检修或调试完毕后,应及时将接线盒盖好。